Eladó Lakás, Budapest III. kerület 298.000.000 Ft

company_logo

298 000 000

Ft

2 098 592 Ft/m²

Cím:

Kategória:

Eladó; Ingatlan; Lakás 

Feladás dátuma:

több, mint egy hónapja
Ingatlanközvetítő

Tulajdonságok

Szobák száma:
4 szoba

Állapot:
Építés alatt

Emelet:
1

Lift:
Nincs

Ingatlan típusa:
tégla

Kilátás:
panoráma

Erkély, terasz:
Van

Bútorozott-e:
nem

Parkolás:
Garázsban

Belmagasság:
3 m alatt

Kertkapcsolatos:
nem

Tulajdonjog/ bérleti jog:
Tulajdonjog

Építés éve:
2025

Költözhető:
kevesebb mint 6 hónapon belül

Méret:
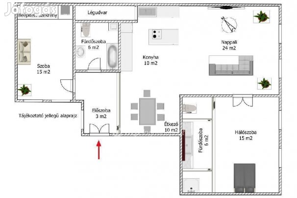
142 m²

Leírás

Kertvárosi exkluzivitás  panorámás, 3 erkélyes újépítésű lakás eladó a III. kerületben!

Budapest egyik legkeresettebb zöldövezeti részén, a 3. kerület szívében kínáljuk eladásra ezt az exkluzív, igényesen kivitelezett első emeleti, nagy alapterületű otthont, egy 3 lakásos társasházban saját kertrésszel és 1db kocsibeállóval.

A ház csendes, kertvárosias környezetben található, mégis pár perces sétára van a HÉV megálló  így ideális választás azoknak, akik nyugalomra és kiváló közlekedésre vágynak egyaránt.
________________________________________

Az ingatlanról röviden:

Nappali + 3 hálószoba (tágas és jól élhető elosztás)
2 külön fürdőszoba: egy kádas és egy zuhanyzós  tökéletes nagyobb családoknak is
3 erkély, valamint lenyűgöző panoráma (8,04m2 + 6,57m2 és 5,78m2)
Saját, leválasztott kertrész
1db saját kocsibeálló
Samsung hőszivattyús mennyezeti hűtés-fűtés, padlófűtéssel kombinálva  minden évszakban tökéletes komfort, a melegvíz ellátásról pedig elektromos bojler gondoskodik
Terrán ClimaControl tetőcserép, 20cm vastag hőszigetelés  energiatakarékos és időtálló megoldás
Prémium anyaghasználat, minőségi kivitelezés
Most még választhatók a hideg-meleg burkolatok, sőt a belső falak kialakítása is rugalmasan alakítható
________________________________________

Amit kínálunk:

Ez nem egy tömegesen épülő, sablonos beruházás  hanem egy igényes, kis lakóközösségű projekt, ahol figyelem és minőség jut minden részletre. Jöjjön el, nézze meg, s lehetősége lesz ízlése és igényei szerint alakítani a belsőt, a burkolatok, beltéri ajtók, kapcsolók, dugaljak stb tekintetében. Kérdés esetén keressen bizalommal.

Hirdetés azonosító: 156209710

Kapcsolatfelvétel a Hirdetővel


Ingatlanközvetítő

Megosztás

Jófogás mobil applikáció

Töltsd le Jófogás alkalmazásunkat!
Töltsd le alkalmazásunkat!

Keress és válogass közel másfélmillió hirdetés közül bárhol is vagy!

Töltsd le alkalmazásunkat iOS-re
Töltsd le alkalmazásunkat Androidra
Töltsd le alkalmazásunkat Huawei-re

A Jófogást megtalálod a közösségi oldalakon is!

Jofogas FacebookJofogas InstagramJofogas YoutubeJofogas LinkedIn